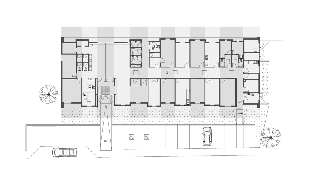
The Health Centre is designed as a set of small volumes of different widths, placed next to each other and huddled together, making a set of small boxes. These boxes correspond to the interior compartments and are surrounded by a fair face concrete band that holds them together. The boxes are made of phenolic mahogany wood with aluminium and glass windows.
This set of boxes stretched parallelepiped volume slightly raised from the ground, appears to be an object rather than a building.
Its small size and height similar to the other buildings, blends it in the surrounding rural area.





