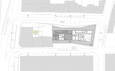
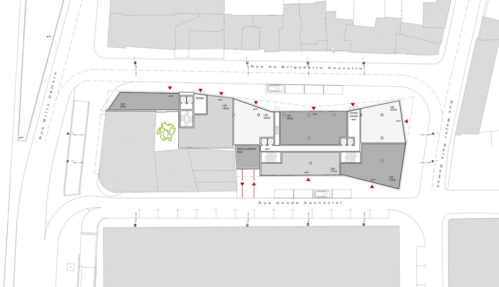
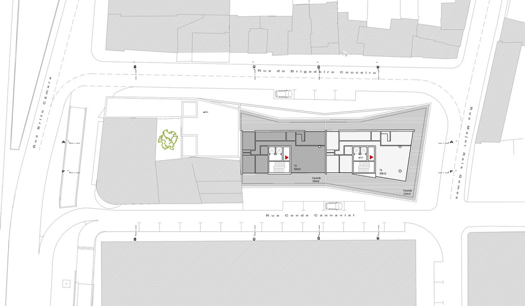
The renewal of a small block in the city centre is the main goal of this multi-purpose building. It will provide space for new businesses such as shops, offices and residential. This program will help boost the city centre life. It is a six-storey 10 500m2 building, with three basements. Shops will fill the first two floors, offices the next floor and apartments the top floors.
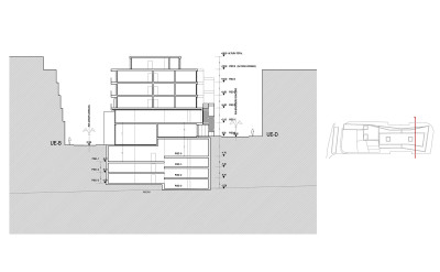
The façade is made of metal and glass panels with the balconies situated behind the facade’s perimeter. The shape of the building is not straight linear, and show smooth breaks as a result of the urban and building regulations.
The shops and office floors have transparent facades which become more opaque as they reach the apartment top floors. The facade is made of modules which alternate to form a pattern of walls, windows or balconies, scattered horizontally.
Due to the site’s topography and the length of the building it was necessary to divide its volume in various sections so as to make it possible to adjust the different levels of the four surrounding streets. There are three main entrances: two on Rua Brigadeiro Oudinot, to access the offices and the apartments and one on Rua Conde Canavial leading to the car parking. The shops at the ground level have direct access to the streets.













